项目位于中山市兴宁路,定位现代前沿风格,来保证项目在很长一段时间内不会落后。通过现代都市化的设计来带动周边的发展。营造一个在设计手法上现代沉稳+品质高级感的空间,同时又兼具文化氛围和灵魂的空间。
初入售楼部,空间的美学与艺术的张力碰撞出融洽的极致空间,投射着空间隐喻的高级感。阅读、商业、社交,多元的情境在此融合,设计师以空间导演的身份编排出丰富的生活场景,使艺术、人文、商业功能得以共同呈现。
区域展示
设计师将架空层打造成休闲的城市客厅,通过休闲区、自动售卖机、书吧区、绿植墙等设施的打造来提升居住者的幸福感。柔和的米色、啡色、金属色为主调,营造温暖舒展的空间氛围,凸显低调奢华的气派。
△前台实景图
前台区域考虑空间的整体性,把茶水台和接待台做成一体形式,让空间整体性更强。
△沙盘展示区效果图
△沙盘展示区实景图
巧用售楼部层高,采用双层叠加的方式,让空间更有秩序感和造型感。而石材柱子造型,让空间变得更有气质和力量感。
△洽谈区实景图
洽谈区增加屏风隔断的形式,隔而不断,在明暗之间,增加空间的形式感和秩序性。
△书吧区实景图
书吧区和茶室中间用书柜形式来分隔,增加两个空间的衔接感,书柜用竖向造型形式来增加空间的现代感及秩序性。
空间美学
空间的透视感是一道特色,在自然光的映照中,原木材质诗意、明媚,光线变幻为空间的五线谱,贯通室内外,与原木包裹的饰面交叠。自由编织的空间美学,流淌着宁静柔美的生活质感。地面空间与墙体擘画出纹理,增添流线感,为光塑造丰富的形体与层次。
钟情于优雅的生活格调,在兴宁汇这个架构的城市客厅里,参观、读书、漫饮,展现城市客厅的惬意。
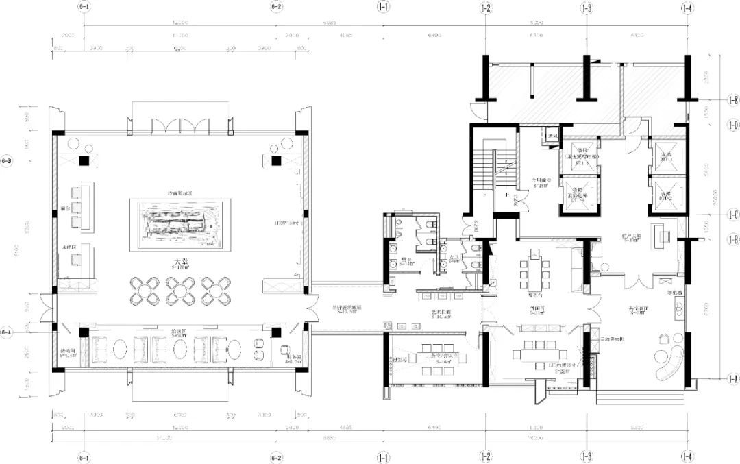
△平面图
项目名称 | 中山致德兴宁汇售楼部
项目地址 | 中山市小榄镇永宁兴宁路91号
建设单位 | 正德地产
设计单位 | 大宸设计
主创设计 | 吴英豪
设计成员 | 周世俊 林宝金 梁万彪 熊国想
项目面积 | 550㎡
竣工时间 | 2021年12月