Interior室内装饰

大参林南宁总部办公室装修设计

项目概况

大参林南宁总部办公室装修设计

接待大堂效果图

项目为“大参林”南宁总部办公室,设计以“林”为设计元素,在项目中大面积使用木饰面、金属、硬包等材料,营造舒适温馨而又现代质朴的空间氛围,更贴合甲方公司的运营理念。

电梯厅效果图

过道效果图

首层大堂采用岩板及艺术玻璃,让艺术融合并渗透到日常工作中,延伸于奢美的空间。设计通过电梯通道对人行流线进行组织、分流、转换,在现有结构的基础上提升办公空间的完整与开敞。

办公室效果图

办公空间采用简约、明快的设计风格,营造轻松高效的工作氛围。办公空间设计充分考虑了产业特点和企业形象,通过在闲置区域加入卡座和座椅交流休闲区,创造出利于交流,更加活力的激励性空间。

主管办公室效果图

领导办公室效果图

领导办公区域,兼顾着办公、接待、会议讨论等多样功能需求。静尔沉稳的独立办公室彰显沉稳、成熟、内敛的氛围,结合实木班台及高端艺术品烘托,打造低调奢华的空间环境。

△ 接待茶室效果图

△ 中会议室效果图

大会议室效果图

着眼于多元、高效、艺术等多种办公设计新趋势,所有墙面、柱体、照明、软装,在整体流线中环环相扣的节点皆从实用性出发,逐步放大艺术元素对办公空间的潜在价值。

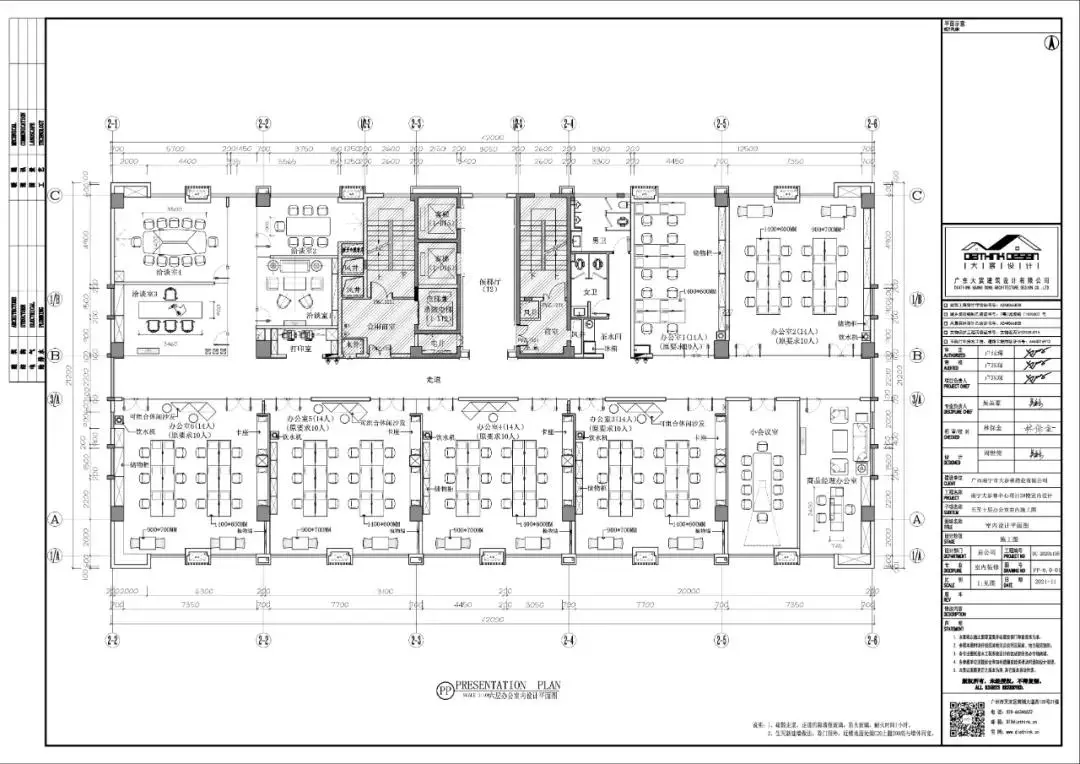
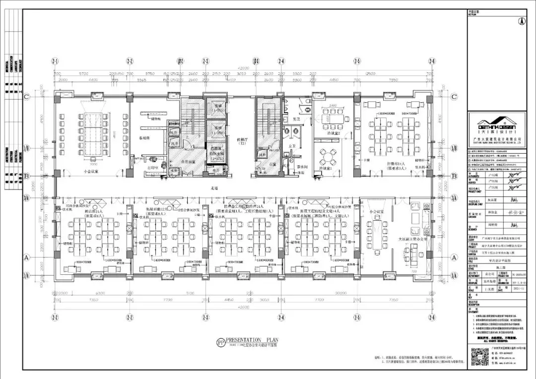
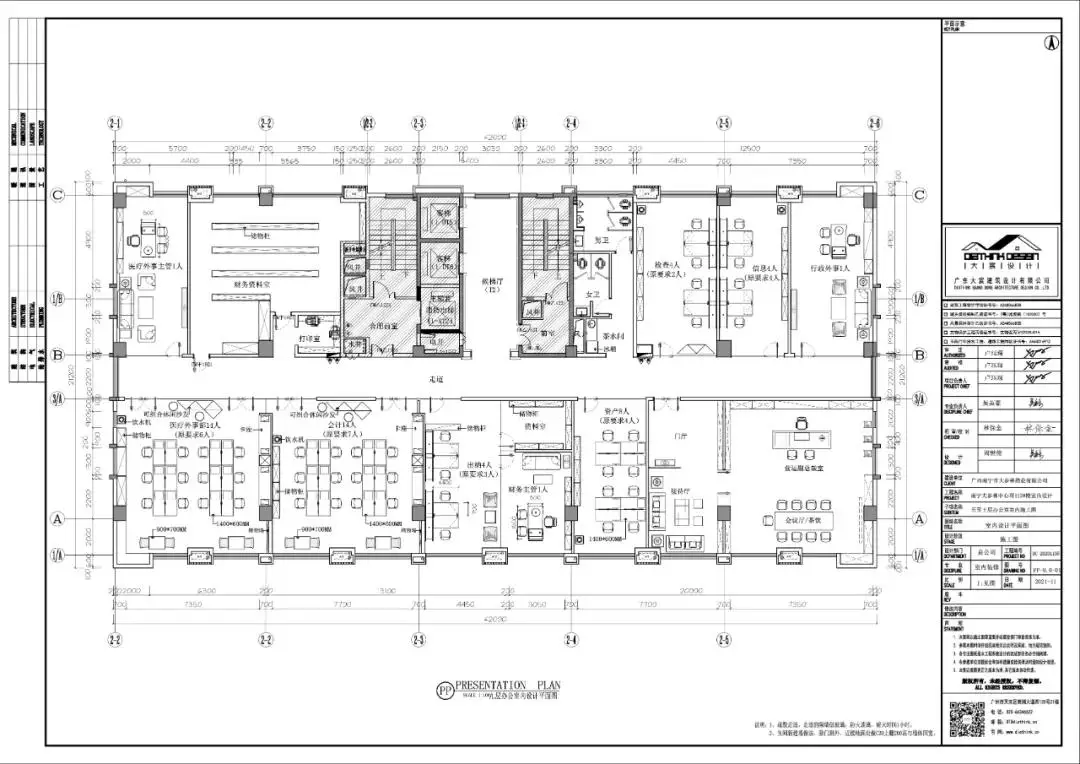
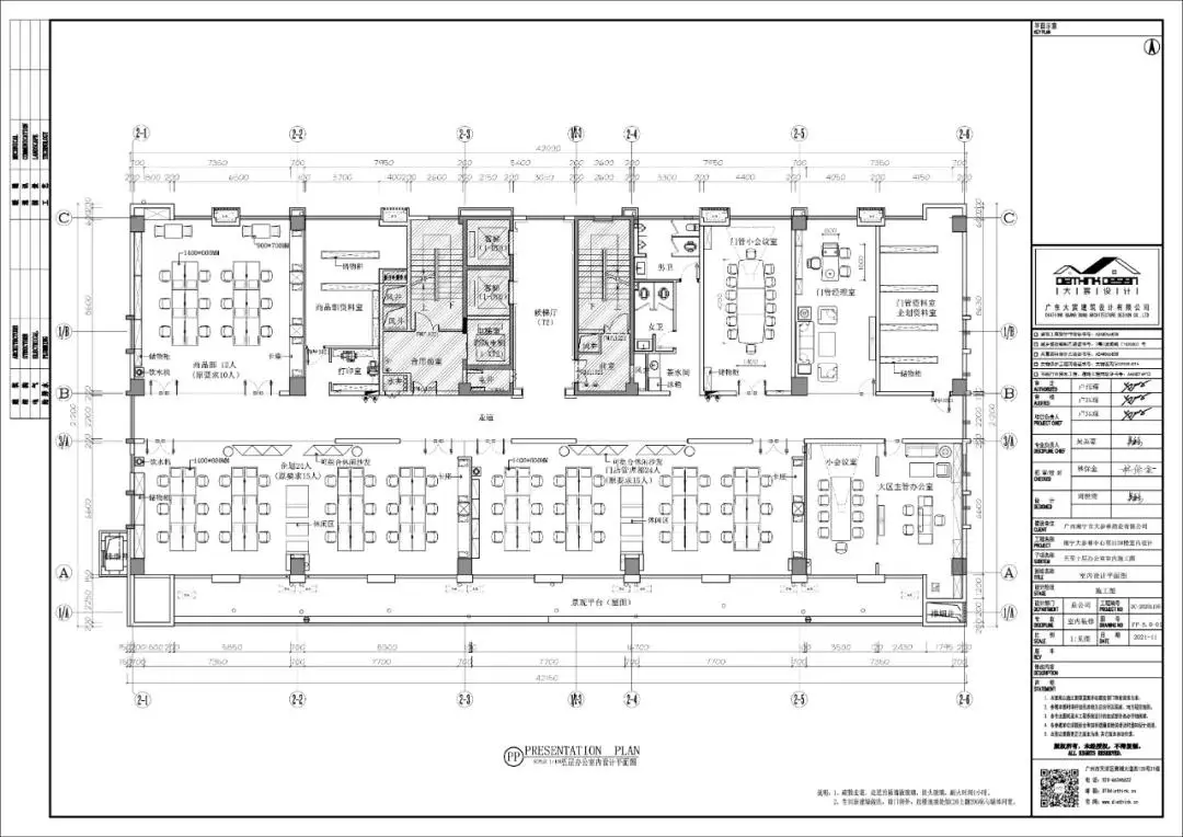
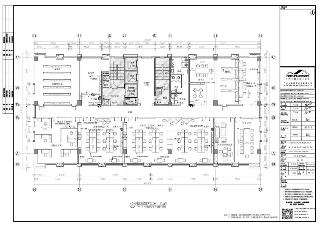
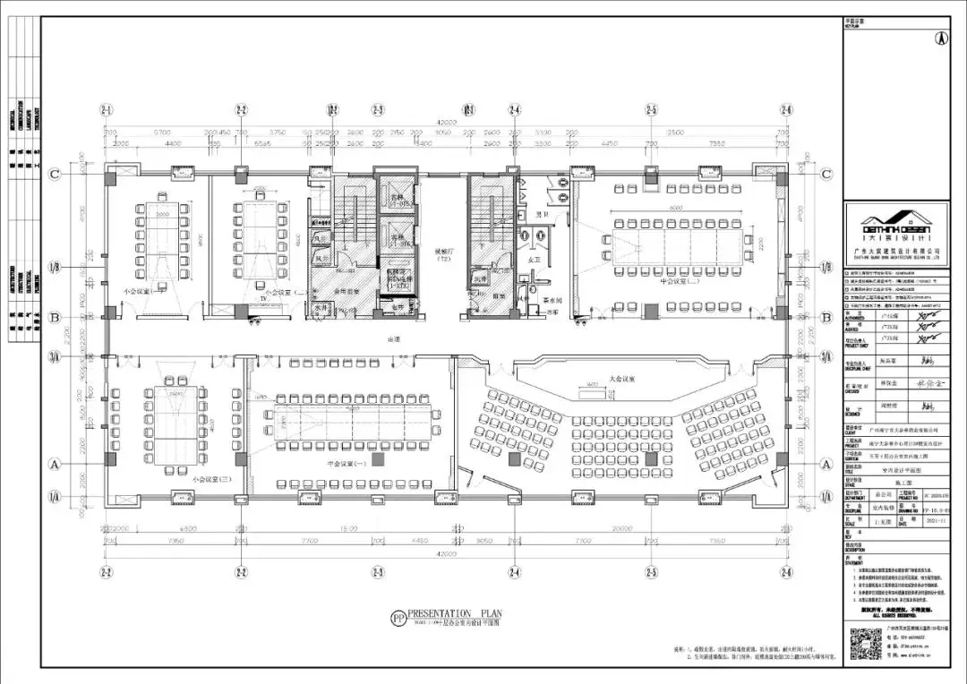
室内平面图

办公区5楼平面图

办公区6楼平面图

△ 办公区7楼平面图

办公区8楼平面图

办公区9楼平面图

办公区10楼平面图

项目名称:大参林南宁总部办公室装修设计

项目地址:广西省南宁市

设计时间:2021

主创设计:吴英豪

设计单位:大宸设计

返回顶部